Les 2 000 habitants de Calmont-de-Plancatge (12) sont répartis sur 4 villages et plusieurs hameaux. 3 écoles coexistent dans 2 villages différents.
Afin de répondre aux besoins des familles, la commune devait se doter d’un équipement regroupant une cantine scolaire et un accueil périscolaire commun aux deux écoles primaires, privée et publique, du village de Ceignac.
Le projet porté par la communauté de communes est maintenant à la charge de la commune seule, qui en assume le fonctionnement. Le CAUE a visité ce nouvel équipement en compagnie de l’architecte et du maire heureux d’avoir mener à bien un projet de qualité.
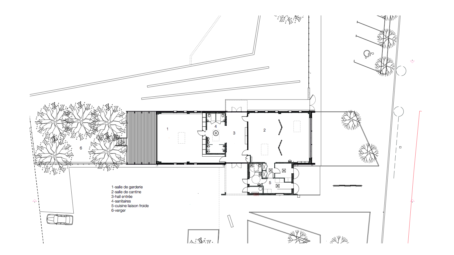
Le bâtiment est situé sur une parcelle contrainte, toute en longueur, au coeur du village, dans le prolongement de la cour de récréation d’une des deux écoles. L’architecte a souhaité valoriser le verger existant, petit îlot de verdure qui permet aussi d’ombrager la terrasse de la garderie, l’été.
Le bâtiment possède un double accès pour les écoles. Les deux entrées distinctes se font face et se rejoignent dans un hall commun où des « space-invaders » en relief, ludiques et distrayants accueillent les écoliers.
Les couleurs et les matériaux employés sont sobres et chaleureux et concourent à une ambiance récréative. Les équipements sont pratiques, dédiés et conçus pour les enfants, comme les fenêtres placées à leur hauteur, qui leur permettent d’observer la vie du village tout en mangeant.
- Architecte : Agence Pierre Enjalbal
- Surface construite : 400m2
- Durée du projet : 10 mois


















