rehabilitation-couvent-logement-01-architecture

La façade principale du couvent conserve son aspect.

Avec le vieillissement de la population, les petites collectivités doivent trouver des solutions innovantes pour permettre aux personnes âgées de rester dans leur environnement. C’est  le pari relevé par la communauté de communes du Naucellois qui a choisi d’investir dans la réhabilitation du couvent du village de Frons et non pas de concentrer l’hébergement des personnes âgées sur le bourg centre de Naucelle.

Certains résidents ont connu l’ancienne école privée et retrouvent aujourd’hui d’anciens camarades de classe !

En 1999, la municipalité de Camjac achète le couvent de Frons, ancienne école privée. En 2008, elle cède ce bien à la communauté de communes du Naucellois pour mener un projet de rénovation et de création de logements dont certains seront réservés à des personnes âgées autonomes, avec la volonté d’accueillir toutes les générations.

rehabilitation-couvent-logement-11-architecture

Le projet de réhabilitation est ‘’porté’’ par la communauté de communes à travers la personne de Jean Lacombe, élu communautaire, conseiller municipal de Frons et médecin.

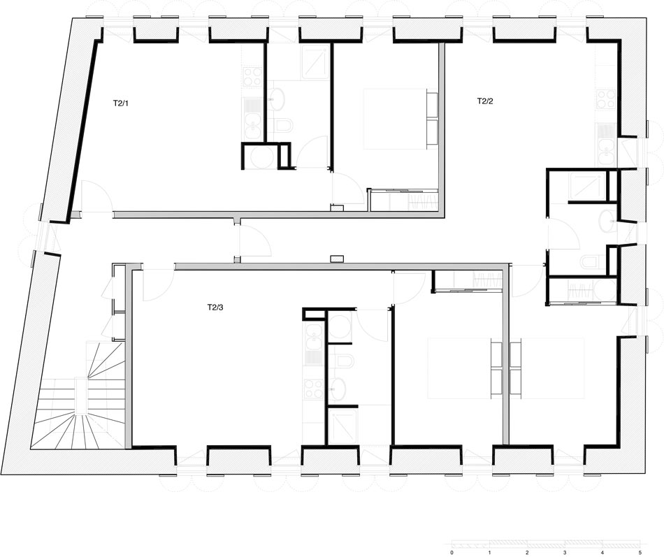
Le couvent bénéficie d’une réhabilitation : 6 studios en rez-de-chaussée, 5 logements du T2 au T3 dans les étages pour les couples et familles.

L’extension, réalisée en limite de propriété et dans le prolongement de l’ancien couvent accueille 11 studios et des salles de vie commune.

rehabilitation-couvent-logement-21-architecture

Aujourd’hui 2 appartements et 13 studios avec services sont déjà habités après une ouverture en 2 phases : l’ancien couvent en 2011 et l’extension en 2012.

L’équilibre financier de l’opération (salaires de la maîtresse de maison) s’établit par la location avec services de 14 à 15 studios.

Un projet social

Le seul critère du logement ne suffit pas à mener un projet ambitieux et de qualité. Des actions sociales et associatives complètent le dispositif.

  • Apporter une vie de famille à des personnes âgées autonomes mais isolées, originaires pour la plupart des environs. Une maîtresse de maison est présente toute la journée (3 personnes se relaient 7/7j équivalent 2,5 temps plein, personnel intercommunal) pour assurer une présence, les services (déjeuner, goûter, traitement du linge, entretien des parties communes) et l’animation sur place ou à la maison de retraite La Fontanelle à Naucelle.
  • Proposer des appartements T2 et T3 pour créer une mixité de population. Aujourd’hui seuls deux appartements sont occupés par des célibataires.
  • Ouvrir le foyer aux habitants du village – Faire partie du village. Le bâtiment s’ouvre par une porte sur la rue. Associations et habitants sont conviés à participer à l’animation du foyer.

rehabilitation-couvent-logement-16-architecture

L’architecture

Le projet architectural vient répondre à cette ambition sociale en proposant des espaces généreux et conviviaux tant dans les parties privées – studios et loggias- que dans les parties communes – coursives, terrasses, jardins, patio, salles communes.

L’enjeu consistait à réhabiliter l’ancien couvent sans toucher à la structure du bâtiment, notamment les ouvertures et l’escalier.

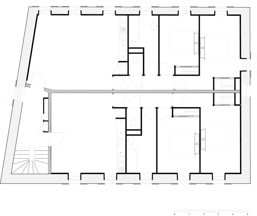
Au rez-de-chaussée les studios sont distribués par une coursive couverte qui fait le tour du bâtiment. Les cuisines et sanitaires sont groupés dans l’axe central du bâtiment pour assurer l’éclairement des pièces de vie par les ouvertures existantes.

pla-couvent-frons-rdc-architecture rehabilitation

Plan du rez de chaussé – réhabilitation du couvent de Frons

Pour l’extension, studios sur 2 niveaux et salles communes, il s’agissait de s’inscrire en limite d’un périmètre de réciprocité d’une exploitation agricole. L’implantation du bâtiment s’explique par cette contrainte. Depuis la terrasse de l’étage, les résidents ont vue sur la vie de la ferme.

L’architecte a mis à profit le dénivelé initial du terrain entre l’arrière du couvent et le fond de la parcelle. Cette situation a permis de traiter l’accessibilité de plain-pied aux studios du niveau 1 par la création d’un patio. Une coursive technique est enterrée à l’arrière des studios du rez-de-chaussée (chauffage etc). Le patio relie ancien bâtiment et nouvelle extension. Le bassin recueille les eaux de pluie.

Les aménagements extérieurs soignés confortent un cadre de vie agréable et permettent aux habitants d’avoir des activités extérieures dès les beaux jours.

rehabilitation coupe-couvent-frons-architecture

Coupe du projet de réhabilitation du couvent

> Fiche réalisation au format PDF

Galerie photo